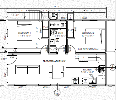
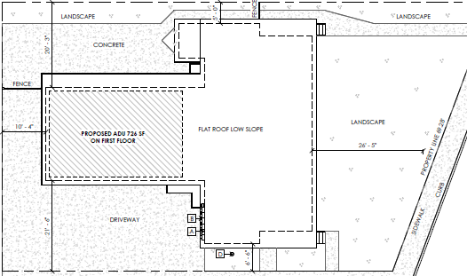
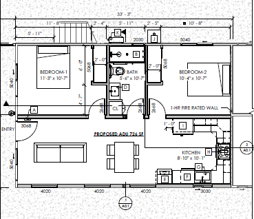
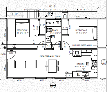
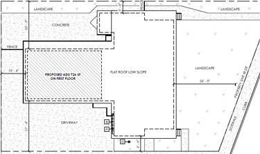
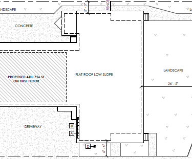
Carport Conversion to ADU
San Pablo, California: This project converts an existing carport into a fully functional Accessory Dwelling Unit (ADU) featuring two bedrooms, a bathroom, kitchen, and living area. The renovation includes installing a new water heater and a mini-split HVAC system to ensure modern comfort and efficiency. The result is a self-contained, code-compliant living space that maximizes the property’s potential.


