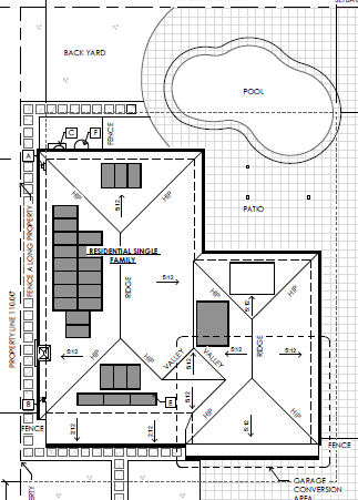
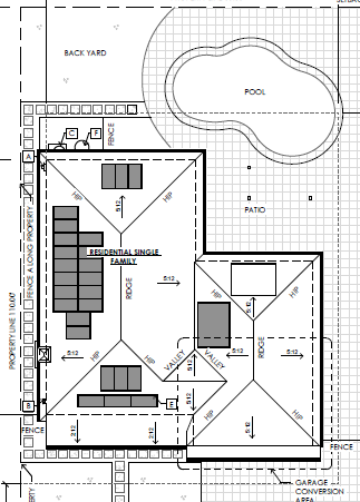
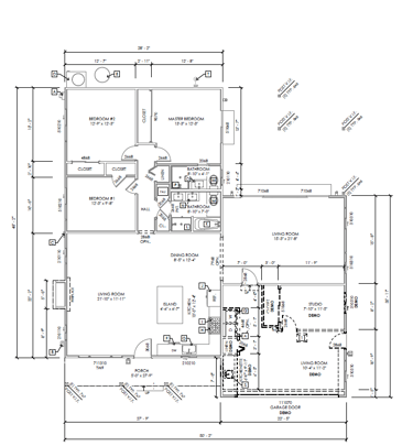
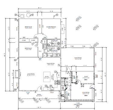
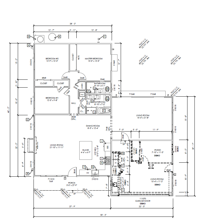
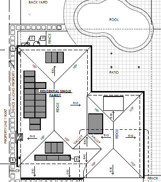
Garage Conversion
San Jose, California: This project converts an existing garage into a junior ADU, featuring a new bathroom, laundry with pantry, living area, kitchenette, and skylight. The floor is raised to match the main residence, and new electrical appliances, a mini-split system, and electric water heater are installed, all connected to existing sewer and water lines. Exterior finishes are updated with three-layer stucco to match the existing home, creating a cohesive and functional living space.


