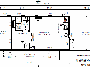
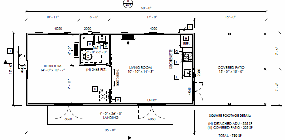
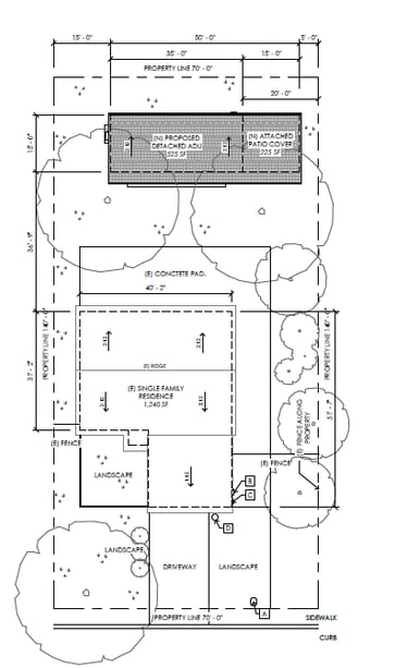
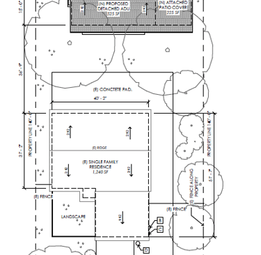
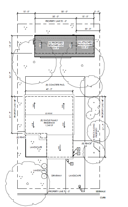
Detached ADU
Pinole, California: This project proposes a new 525 SF detached ADU with an attached 225 SF covered patio, offering additional living space and outdoor comfort. The renovation also includes upgrading the main electrical panel to 200 AMP to support modern appliances and systems. The design combines functionality, convenience, and enhanced property value.


