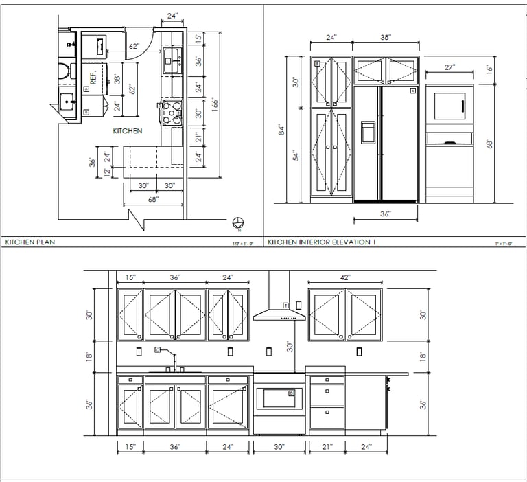
Interior Remodel
Oakland, California: This project involves a like-for-like kitchen remodel that refreshes the existing layout while maintaining the current placement of countertops, sink, and appliances. The scope includes updating finishes and fixtures for a cleaner, modernized look while preserving the original flow. An updated electrical layout is also provided to ensure safe, efficient power distribution throughout the kitchen.


