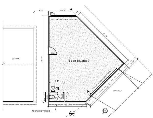
Detached Garage
Hayward, California: This project adds a new 619 SF detached two-car garage, providing secure and convenient parking. The design ensures functionality while complementing the existing property layout. The structure enhances the home’s utility and storage options.


