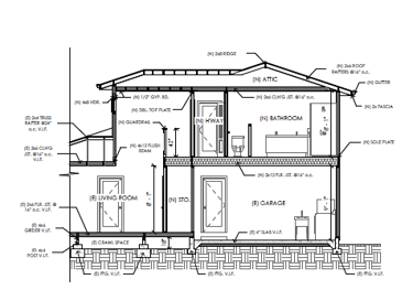
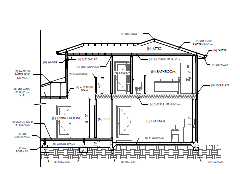
1st and 2nd Story Additions
Hayward, California: This project adds a 317 SF first-floor addition, including a 242 SF relocation of the existing kitchen and a 75 SF rear addition to Bedroom 2, while reconfiguring closets between Bedrooms 2 and 3. A new staircase is added to connect the first floor to the new second story, transforming the home from a 3-bedroom, 1-bath layout into a spacious 5-bedroom, 3-bath residence. The design enhances functionality, flow, and overall living space.


