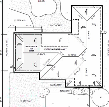
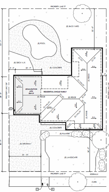
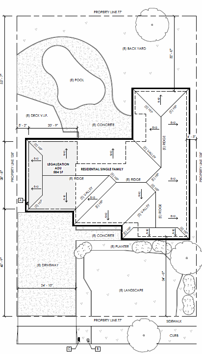
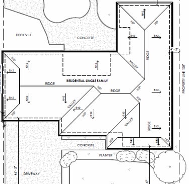
ADU Legalization
Fresno, California: This project legalizes an unpermitted garage conversion into an Accessory Dwelling Unit (ADU), ensuring the space meets current building and zoning requirements. The scope includes verifying existing conditions and correcting any non-compliant construction. No new square footage is added; the focus is on bringing the existing unit into full compliance with local regulations.


