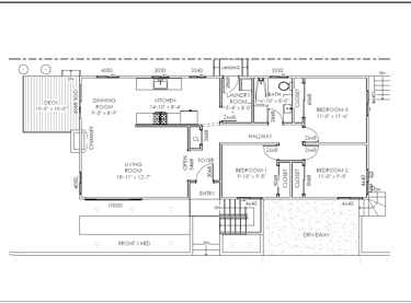
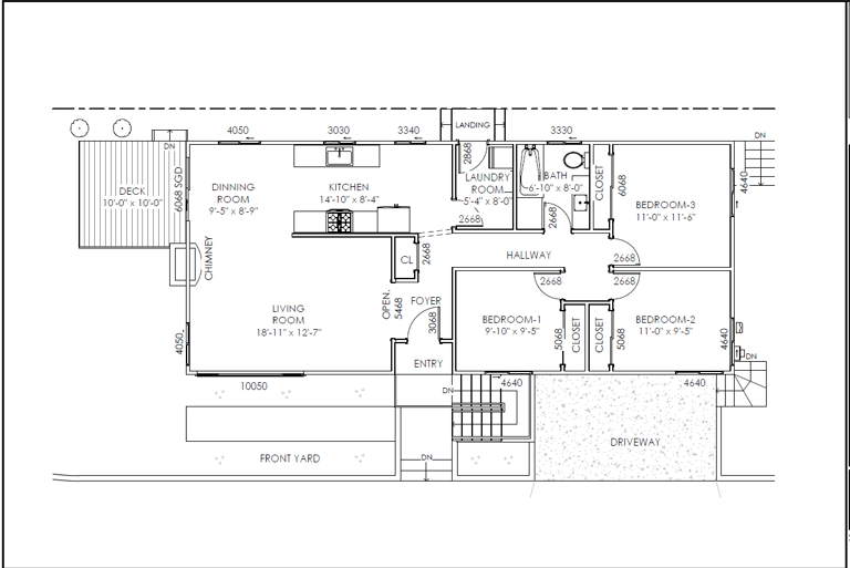
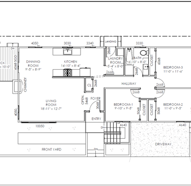
Interior Remodel
El Cerrito, California: This project remodels the interior to create a more open and functional living space, including removing the wall between the kitchen and living room for a new kitchen layout and converting the laundry room into a new bathroom. The design also transforms an existing bedroom into a master suite with a new bathroom and closet, adds a refreshed laundry area for an electric washer and dryer, and installs a new deck on the north side of the property. Updated windows are included to maintain natural light and enhance the home’s overall comfort.


