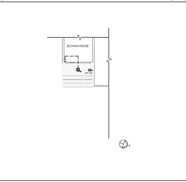
Back Porch Project
Daly City, California: This project involves removing the existing back porch and installing a new concrete landing with stairs to provide safe, convenient access to the rear sliding door. The design focuses on functionality, durability, and seamless integration with the home’s exterior. The result is an updated entryway that enhances both safety and outdoor usability.


