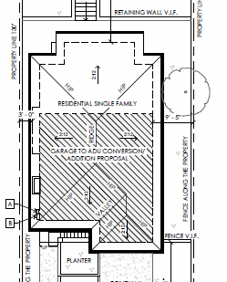
Garage Conversion to ADU
Oakland, California: This project converts an existing garage and expands into the adjacent crawlspace to create a new 700 SF Accessory Dwelling Unit (ADU) with two bedrooms, one bathroom, a kitchen, living area, and laundry. New retaining walls and foundation ensure structural stability, while the main dwelling remains unchanged. The result is a fully functional, self-contained living space that adds value and versatility to the property.


