Pizza by the Slice
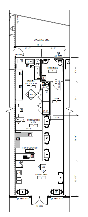
Hayward, California: This project remodels an existing commercial unit to enhance its functionality for a pizza restaurant. Work includes adding a three-compartment sink, running new sewer and gas lines, installing a pizza oven with an exhaust hood, a new soda machine, and additional electrical outlets for appliances. The remodel optimizes the space for efficient restaurant operations while maintaining the existing flooring, walls, ADA bathroom, and lighting.


