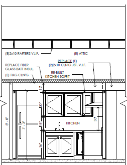
Fire Damage Repair
Bay Point, California: This project repairs fire damage in the kitchen area, replacing damaged ceiling framing, electrical systems, cabinets, kitchen range and hood, and gypsum board. All replacements are done like-for-like to restore the kitchen to its original condition. The work ensures both safety and functionality while preserving the home’s design.


